トピックス
Topics
- 施主インタビュー
後編|“やってよかった”を実感できる家づくり|名古屋市K様

“猫にも人にも、気持ちいい空間にしたい”を叶えた家。—— 実際に暮らして感じたことと、リフォームを考える方へのアドバイス
[前編はこちら]
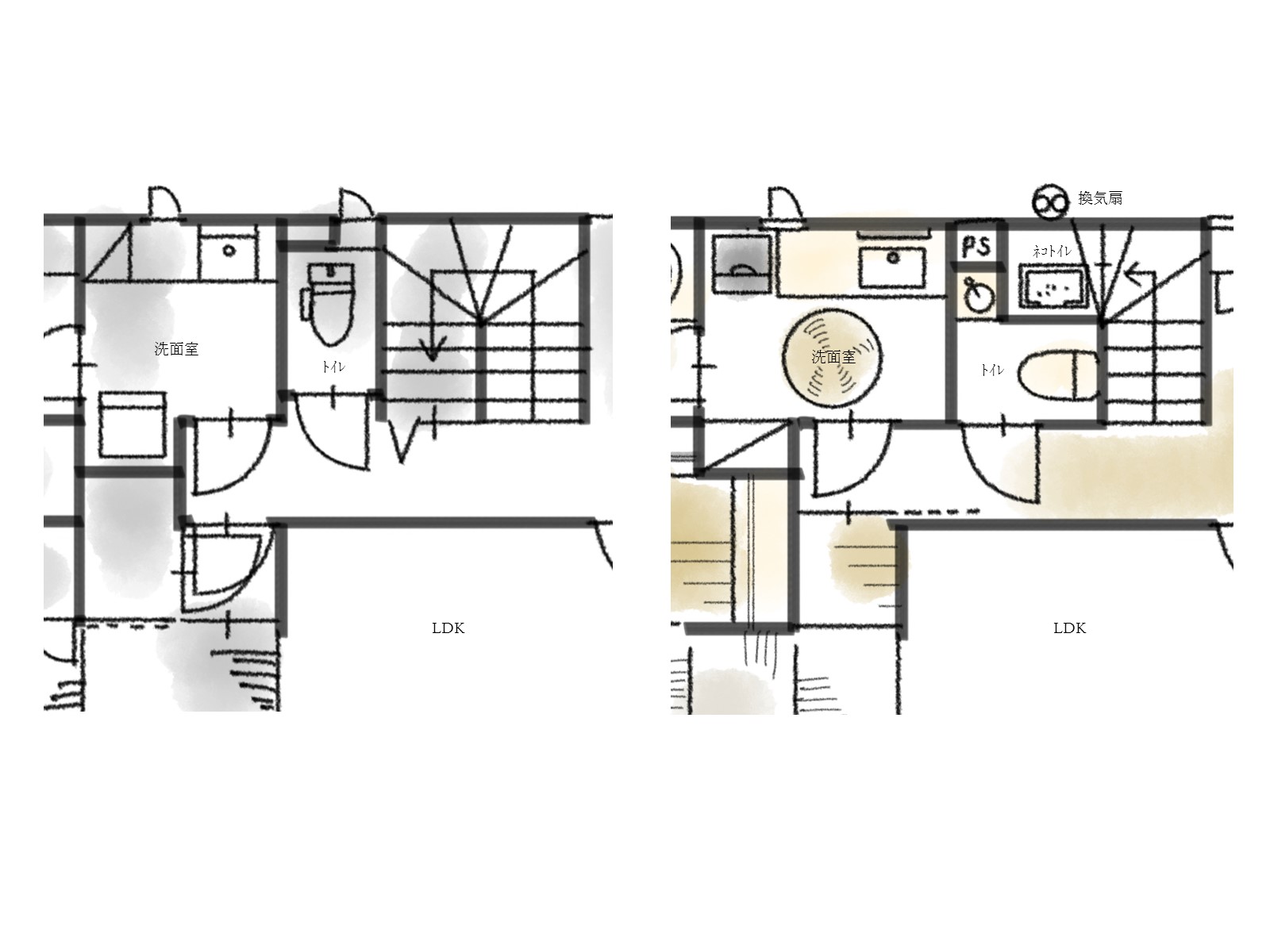
猫たちにも、人にも快適なトイレスペース
K様ご夫婦が今回のリフォームで特に気に入っているポイントのひとつが、猫と共生できるトイレ空間の実現です。

「私にとっては、ここが一番のお気に入りですね。猫たちのトイレも人間用のトイレと並んで設けていて、お世話の導線がすごく短くなりました。猫砂のストックも階段下の奥に収まっていて、動かずにすべて完結できるんです」(奥様)
リフォームから1ヶ月、猫たちも場所を覚え、安心して使ってくれているとのこと。掃除のしやすさはもちろん、におい対策として換気扇を猫トイレのすぐそばに新設したこともポイントです。
「2匹とも順応してくれていますし、まったく匂いが気になりません。小さなスペースでも換気がしっかり効いているのを実感します」(奥様)



洗面室にランドリースペースを融合。作業効率が大幅アップ
もうひとつの大きな変化が、洗面室と洗濯動線の改善です。
「今流行りの“ランドリールーム兼洗面室”のような空間にしたかったんです。実際に完成してみると、洗う・干す・乾燥・アイロン・収納まで全部ここで完結する。すごく楽になりました」(奥様)
洗面カウンターの天板素材には特にこだわり、堅牢なものを選定。ちょっとしたタオルを敷くだけでアイロンがけができる、日常使いに嬉しい仕様になっています。
「見た目にも上質で、毎日目にする場所だからこそ、“気分が上がる素材”を選んでよかったと思います」(奥様)


お風呂や収納も、“細部まで納得”の設計に
お風呂については、「気持ちよさが段違い」とご夫婦ともに満足のご様子。
「窓をFIXに変更したことで視界がスッキリしましたし、浴槽の向きを変えたら、正面に大きな窓がくる配置になって。これは本当に大正解でした」(奥様)
「最初は“窓をなくしてもいいかな”と思っていたんですが、断熱しつつ残す判断をして、よかったです」(ご主人)
床材にはタカラの大判タイルを採用し、足触りも上々。冬になればさらにその良さを実感できそうです。
また、玄関の収納も、既製品に頼らず造作で設計。色・サイズともに満足の仕上がりに。

時間をかけて選び抜いた玄関収納のカウンター。アルヴァ・アアルトのフラワーベースが映える。
リフォームの成功には、「やりたいことの整理」が鍵
リフォームを考えている方へのアドバイスとして、ご夫婦が何度も口にされたのが、
「まずは思いつくことをすべて書き出すこと」。
「絶対やりたいこと、小さな希望、なんでも全部。書き出してみると、自分たちの本当の優先順位が見えてきます。図面やSNSの情報だけに引っ張られず、“私たちにとって本当に必要なもの”を見つけられるんです」(奥様)
実際にご夫妻も、やりたいことを箇条書きに並べ、「これは譲れない」「これは意外と重要じゃなかった」と判断していったそうです。

手洗いのタイルまでこだわりがうかがえる。
“住む人”がちゃんと話すからこそ、いい提案がもらえる
「このスペースが狭いから広げたい」と言っても、“なぜそう感じるか”までは伝わらないことが多い。だからこそ、ご夫妻はリフォームを成功させるために「生活のシーンを具体的に伝えること」を意識されたそうです。
「プライベートなことを話すのは勇気が要りますけど、どんなときに不便か、どんな暮らしをしたいかを開示すればするほど、完成後の満足度は上がります」(奥様)
「それにしっかり応えてくれる担当者だったので、信頼して任せることができました」(ご主人)
図面だけではイメージしきれないときには、実際に立って・歩いて・感じてみることも大事だとアドバイスくださいました。
ものづくりが趣味のご夫婦は、住まいのアイディアもあふれてくる。
“流行”よりも、“自分軸”で決める勇気
「雑誌やSNSで見ると、“いいな”と思うものってありますよね。でも実際にそれが自分たちの暮らしに必要かどうかは、書き出してみると見えてくるんです」(奥様)
ご夫妻は、他人の価値観や流行に流されず、「自分たちにとって本当に大事なこと」を冷静に見極めながら、住まいの形を選んでいきました。
「たとえばリビングの出窓。昔は流行ってましたよね。“そういえば、あの時って出窓が人気だったよね。私たちも好きだったっけ?”って改めて思い返して」(奥様)
「そうそう。でも今は猫がいるので、結果的にあってよかった。猫の居場所になってるし、今の暮らしには合ってますね」(ご主人)

何となく選んだものでも、家族構成や暮らし方の変化によって“意味のある場所”になることもある。だからこそ、最終的には「他人の目」ではなく、「自分たちの納得感」が大事だと実感されたそうです。
「すごく勇気がいるんですけどね。でも、自分たちがやりたいように選んでよかったと思います」(奥様)
終わりに——“勇気を出して話す”ことで始まるリフォーム
「図面や見積もりを見ていると、何のためにリフォームするのかが見えにくくなることがあります。でも、生活をどうしたいかを素直に話すことで、本当に納得のいく提案に出会える。今回のリフォームで、それを実感しました」
笑顔でそう語ってくださったK様ご夫妻。その言葉には、「人と人の対話」が家づくりの原点だという、あたたかいヒントが込められていました。
対談・編集:リフォームギャラリー名古屋 森田